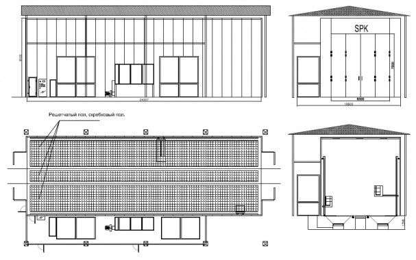
Обитаемая дробеструйная камера в уличном исполнении SPK 24.8.8
|
Размеры |
|||||||||
|
Внутренние размеры |
3500x3500x3000mm
|
Внешние размеры |
3700x7150x3700mm
|
||||||
|
Поток воздуха |
Направлен вниз |
Вытяжка |
Через три канала в каждой камере, 4 шт |
||||||
|
Вытяжка ч-з пол |
|||||||||
|
Всего каналов |
3 шт. |
Размер канала для сбора дроби |
3100х1120 mm/ канал |
||||||
|
Ряды решеток, шт. |
3 ряда |
Решетки |
плоские из стали |
||||||
|
Покрытие решеток |
Оцинковка |
Максимал. нагрузка (kg/ m3) |
1200 |
||||||
|
Кабина |
|||||||||
|
Форма |
Выпуклая |
Конструкция |
металлический силовой каркас |
||||||
|
Главная дверь |
|||||||||
|
Количество створок |
Ворота распашные |
Размеры дверей |
2300 х 2500 (Ш х В) |
||||||
|
Материал |
Оцинкованная сталь |
Резина |
6мм |
||||||
|
Стенные панели |
|||||||||
|
Толщина Панели |
100 мм |
Толщина стали |
0,6 мм |
||||||
|
Наполнитель в панелях |
Минеральная вата |
Плот-сть наполнителя (кг/ кв.м) |
19,0 |
||||||
|
Сервисная дверь |
|||||||||
|
Количество дверей |
2 |
Размеры дверей |
800х2000(ШхВ) |
||||||
|
Расположение |
Справа |
Антипаниковая система - аварийный выход с освещением |
Резина толщ. 6 мм |
||||||
|
Крыша камеры |
|
||||||||
|
Форма |
Прямая |
Стальная конструкция |
Да |
||||||
|
Каркас |
Сталь D8 |
Материал панели крыши |
Минер. вата |
||||||
|
Освещение |
|||||||||
|
Верхний свет |
12 плафонов |
Каркас крепления светильников |
Стальной |
||||||
|
Нижний свет |
- |
Выпрямитель |
Одно действие на 2 лампы |
||||||
|
Группа подготовки воздуха |
|||||||||
|
Обшивка |
Каркас моноблока - из стальных панелей |
Управление потоками воздуха |
Пневматическая заслонка |
||||||
|
Кол-во генераторов притока |
Моноблок |
Кол-во генераторов вытяжки |
Моноблок |
||||||
|
Вентилятор приточной группы |
Обладает двойным действие |
Вытяжной вентилятор |
Обладает двойным действие |
||||||
|
Siemens |
Siemens |
||||||||
|
Общая произв-ность: 16 000 м³/ч |
Общая производит-сть: 16 000 м³/ч |
||||||||
|
Давление вентилятора 700Па. |
Давление вытяжного вентилятора 700Па. |
||||||||
|
Система регенерации дроби |
|||||||||
|
Регенерация |
Сепаратором |
Агрегатный блок Дробеотделитель лабиринтного типа. Один вибросепаратор. Напорные рукава 32 мм диаметром, сопло Вентури 8 мм диаметром, Система дробедвижения |
2 мм -ячейки сита. Бункер-накопитель с объемом 200 литров. Напорный агрегат объемом 200 литров модель DBS-200. Вентили ДУ |
||||||
|
Система сбора дроби |
|||||||||
|
Скребковый пол |
Скребковый пол, снабженный грейферными скребками. Линейка сбора абразива шириной 1,12 м установлена вдоль стен камеры. Высота пола 180мм. Решетчатый настил пола. Пневматический привод скребков (на 1 линейку). |
Фильтр вытяжки |
|
||||||
|
Система контроля технологических режимов |
|||||||||
|
Управление при использовании |
Реле |
|
|
||||||
|
Система перемещения операторов |
|||||||||
|
Полнорешетчатый помост |
|||||||||
|
Питание |
|||||||||
|
Питание двигателя |
3* 380 вольт 50 Гц |
- освещения |
220 вольт 50 Гц |
||||||
|
Общая мощность 22 кВт |
|||||||||
Внутренние габариты камеры (ДхВхШ): 3500x3500x3000 mm
Внешние габариты (ДхВхШ) : 3700x7150x3700 mm
Габариты ОСК








