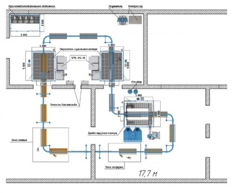
Комплекс подготовки поверхности металлоконструкций SPK GROUP


Комплекс от компании SPK GROUP предназначен для нанесения на металлоконструкции качественно защитного антикоррозийного покрытия.
Камеры в составе комплекса:
- дробеструйная;
- окрашивания и сушки.
Климатическое исполнение камер — УХЛ4
Для перемещения металлоконструкций между камерами установлен замкнутый непрерывный монорельсовый конвейер с ручным перемещением.
Характеристики камер:
Дробеструйная камера:
- в камере производится очистка дробеструйным способом поверхности изделий перед окрашиванием;
- проходная конструкция;
- металлокаркас;
- сэндвич-панели;
- для защиты от повреждения дробью изнутри стены, двери, потолок имеют резиновое покрытие;
- система освещения камеры организована из светодиодных светильников с ударопрочными плафонами;
- два транспортировочных проёма с воротами 2,5 х 3,5 м;
- одна сервис-дверь со смотровым окном, защитной футеровкой, доводчиком;
- 4 комплекта конвейеров для удаления отработанной дроби. В комплект входят напольные поперечный и продольный конвейеры;
- воздухооборот в камере осуществляется ВФУ мощностью 17 000 м³/ч;
- воздуховоды для рециркуляции воздуха.
Камера окрашивания и сушки:
- в камере производится нанесение и сушка покрытия;
- проходная;
- два транспортировочных проёма;
- одна сервисную дверь;
- система освещения организована взрывобезопасными светодиодными светильниками;
- вентиляционная установка производительностью 18 000 м³/час;
- кассетные фильтры G4;
- двигатель имеет взрывзащищённое исполнение, искрогашения рабочих колёс.
- система контрольных датчиков, газоанализаторы;
- потребление сжатого воздуха подключается через точки быстрого доступа с локальными фильтрами и осушением.



