Модернизация окрасочно сушильной камеры для локомотивов SPK-22
Общее описание
Данная покрасочная камера предназначается для окрашивания вагонов целиком и подетально с дальнейшей сушкой. Весь комплект оборудования камеры окраски и сушки производит вентиляцию, воздушный надув, сушку, удаление газов. Оборудование окрасочной камеры включает в конструкцию: кабину, осветительную систему, приточно-вытяжную вентиляционную систему, отопление, удаление выхлопных газов, а также систему контроля.
Технические параметры:
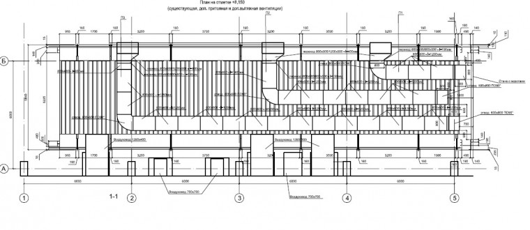
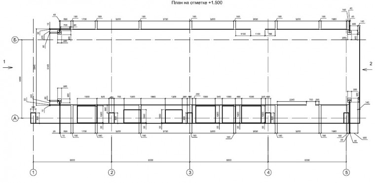
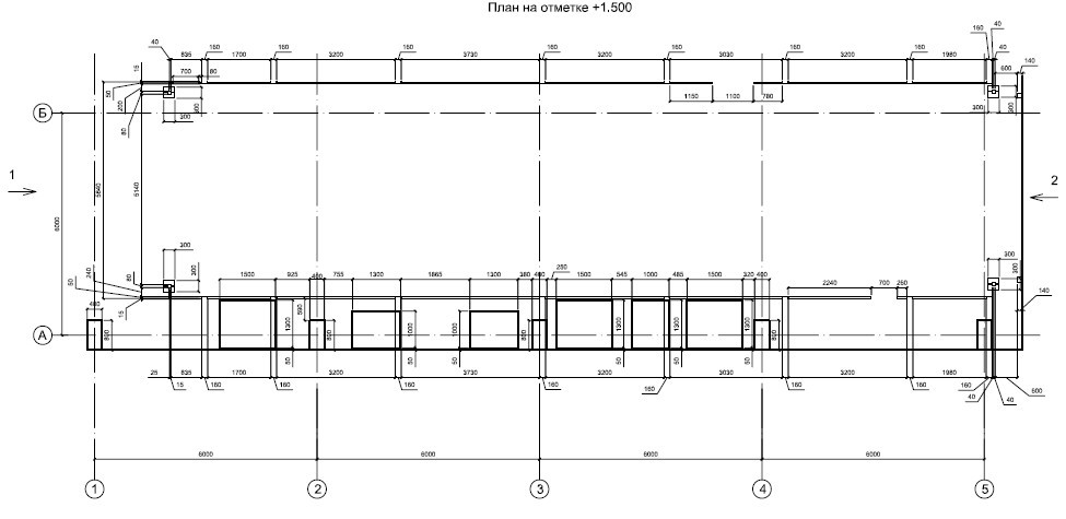
Внешние размеры - 9000*6600*22200 мм
Внутренние габариты кабины, 5840*5700*22000 мм
Габариты основной двери для заезда транспорта - 5140х5200 мм (ШхВ)
Воздухообмен до 18 тыс. м.куб/час
Скорость воздуха в камере окраски 0.2 м/сек
Частота полного замещения воздуха в камере - 266 крат/час
Максимальная рабочая температура 88ºС
Уровень шума ≤80 дБ (А)
Уровень загрязнений воздуха в камере ≤1.4 мг/м3
Внутренние габариты камеры (ДхВхШ): 5840x5700x22000 мм
Габариты ОСК











































